BACK TO RESIDENCES

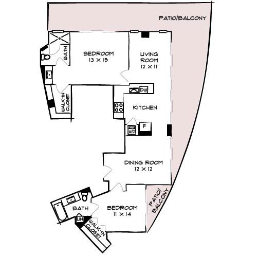
Surf 2A Premier

Diagram
Flamingo South Beach Center Tower - 2 Bed / 2 Bath - Surf 2A
Surf 2A Kitchen Flamingo Point - Miami FL

Available Units

Unit #C3112
Starting at $6,013
1,212 Sq. Ft.
Available May 7
Unit #C1812
Starting at $5,373
1,212 Sq. Ft.
Available May 16