BACK TO RESIDENCES

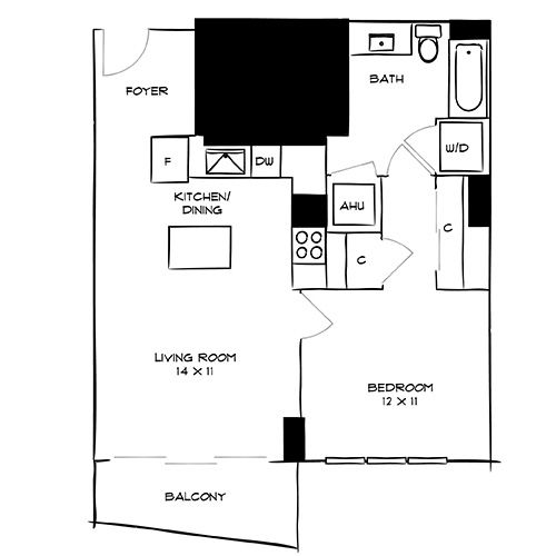
The Gardens 1M

Diagram
Flamingo Point | Miami, FL | The Gardens 1M Diagram
Flamingo Point - Miami, FL - The Gardens Interior

One clear price that includes all required monthly fees—no fine print, no surprises.

Available Units

Unit #N1021
Starting at $3,754
833 Sq. Ft.
Available Now
Unit #N0421
Starting at $3,454
833 Sq. Ft.
Available May 31