Schedule A Tour
Apply Now
Home
Opulent Collection
Residences
Community Features
Location
Retailers
Kids programming
FREQUENTLY ASKED QUESTIONS
BACK TO RESIDENCES
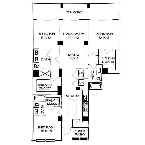
Sunset Villas 3A
Diagram
Photo
3D Tour
Diagram
Diagram
Photo
3D Tour
Available Units
Unit #N1002
Starting at $7,522
1,560 Sq. Ft.
Available Jan 26
View Unit