Schedule A Tour
Apply Now
Home
Opulent Collection
Residences
Community Features
Location
Retailers
Kids programming
FREQUENTLY ASKED QUESTIONS
BACK TO RESIDENCES
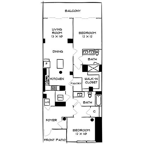
Sunset Villas 2L
Diagram
Photo
3D Tour
Diagram
Diagram
Photo
3D Tour
Available Units
Unit #N0404
Starting at $5,195
1,319 Sq. Ft.
Available Now
View Unit